Farm Transparency Project
Farm Transparency Project
Search
  • Gallery & Database
    • Photos 28539
      • Upload new
      • All photos
      • By category
        • Farm (meat)
        • Farm (dairy)
        • Farm (eggs)
        • Farm (wool)
        • Farm (skins/fur)
        • Hatchery
        • Saleyard
        • Slaughterhouse
        • Knackery
        • Other
          • Activism
          • Agricultural show
          • Circus
          • Dairy processing
          • Depot / holding yard
          • Experimentation
          • Farm (honey)
          • Live export
          • Meat processing (non-slaughter)
          • Other entertainment
          • Pet breeder
          • Race training/breeding
          • Racecourse
          • Rendering plant
          • Rodeo
          • Wildlife
          • Zoo
        • Unknown
      • By species
        • Chickens
        • Cows/cattle
        • Ducks
        • Goats
        • Pigs
        • Sheep
        • Turkeys
        • Other
          • Alligators
          • Alpacas
          • Bees
          • Buffalo
          • Calves
          • Camels
          • Cats
          • Chinchillas
          • Crocodiles
          • Deer
          • Dingoes
          • Dogs
          • Donkeys
          • Emus
          • Fish/sealife
          • Foxes
          • Geese
          • Greyhounds
          • Horses
          • Kangaroos
          • Koalas
          • Lions
          • Llamas
          • Mice
          • Minks
          • Monkeys
          • Ostriches
          • Quail
          • Rabbits
          • Rats
    • Videos 1306
      • Upload new
      • All videos
      • By category
        • Farm (meat)
        • Farm (dairy)
        • Farm (eggs)
        • Farm (wool)
        • Farm (skins/fur)
        • Hatchery
        • Saleyard
        • Slaughterhouse
        • Knackery
        • Other
          • Activism
          • Agricultural show
          • Circus
          • Dairy processing
          • Depot / holding yard
          • Experimentation
          • Farm (honey)
          • Live export
          • Meat processing (non-slaughter)
          • Other entertainment
          • Pet breeder
          • Race training/breeding
          • Racecourse
          • Rendering plant
          • Rodeo
          • Wildlife
          • Zoo
        • Unknown
      • By species
        • Chickens
        • Cows/cattle
        • Ducks
        • Goats
        • Pigs
        • Sheep
        • Turkeys
        • Other
          • Alligators
          • Alpacas
          • Bees
          • Buffalo
          • Calves
          • Camels
          • Cats
          • Chinchillas
          • Crocodiles
          • Deer
          • Dingoes
          • Dogs
          • Donkeys
          • Emus
          • Fish/sealife
          • Foxes
          • Geese
          • Greyhounds
          • Horses
          • Kangaroos
          • Koalas
          • Lions
          • Llamas
          • Mice
          • Minks
          • Monkeys
          • Ostriches
          • Quail
          • Rabbits
          • Rats
    • Documents 455
      • Upload new
      • All documents
      • By category
        • Farm (meat)
        • Farm (dairy)
        • Farm (eggs)
        • Farm (wool)
        • Farm (skins/fur)
        • Hatchery
        • Saleyard
        • Slaughterhouse
        • Knackery
        • Other
          • Activism
          • Agricultural show
          • Circus
          • Dairy processing
          • Depot / holding yard
          • Experimentation
          • Farm (honey)
          • Live export
          • Meat processing (non-slaughter)
          • Other entertainment
          • Pet breeder
          • Race training/breeding
          • Racecourse
          • Rendering plant
          • Rodeo
          • Wildlife
          • Zoo
        • Unknown
      • By species
        • Chickens
        • Cows/cattle
        • Ducks
        • Goats
        • Pigs
        • Sheep
        • Turkeys
        • Other
          • Alligators
          • Alpacas
          • Bees
          • Buffalo
          • Calves
          • Camels
          • Cats
          • Chinchillas
          • Crocodiles
          • Deer
          • Dingoes
          • Dogs
          • Donkeys
          • Emus
          • Fish/sealife
          • Foxes
          • Geese
          • Greyhounds
          • Horses
          • Kangaroos
          • Koalas
          • Lions
          • Llamas
          • Mice
          • Minks
          • Monkeys
          • Ostriches
          • Quail
          • Rabbits
          • Rats
    • Campaign Materials 105
      • Upload new
      • All materials
      • By category
        • Farm (meat)
        • Farm (dairy)
        • Farm (eggs)
        • Farm (wool)
        • Farm (skins/fur)
        • Hatchery
        • Saleyard
        • Slaughterhouse
        • Knackery
        • Other
          • Activism
          • Agricultural show
          • Circus
          • Dairy processing
          • Depot / holding yard
          • Experimentation
          • Farm (honey)
          • Live export
          • Meat processing (non-slaughter)
          • Other entertainment
          • Pet breeder
          • Race training/breeding
          • Racecourse
          • Rendering plant
          • Rodeo
          • Wildlife
          • Zoo
        • Unknown
      • By species
        • Chickens
        • Cows/cattle
        • Ducks
        • Goats
        • Pigs
        • Sheep
        • Turkeys
        • Other
          • Alligators
          • Alpacas
          • Bees
          • Buffalo
          • Calves
          • Camels
          • Cats
          • Chinchillas
          • Crocodiles
          • Deer
          • Dingoes
          • Dogs
          • Donkeys
          • Emus
          • Fish/sealife
          • Foxes
          • Geese
          • Greyhounds
          • Horses
          • Kangaroos
          • Koalas
          • Lions
          • Llamas
          • Mice
          • Minks
          • Monkeys
          • Ostriches
          • Quail
          • Rabbits
          • Rats
    • Facilities 74692
      • All facilities
      • By category
        • Farm (meat)
        • Farm (dairy)
        • Farm (eggs)
        • Farm (wool)
        • Farm (skins/fur)
        • Hatchery
        • Saleyard
        • Slaughterhouse
        • Knackery
        • Other
          • Agricultural show
          • Circus
          • Dairy processing
          • Depot / holding yard
          • Experimentation
          • Farm (honey)
          • Meat processing (non-slaughter)
          • Other entertainment
          • Pet breeder
          • Race training/breeding
          • Racecourse
          • Rendering plant
          • Rodeo
          • Wildlife
          • Zoo
        • Unknown
      • By species
        • Chickens
        • Cows/cattle
        • Ducks
        • Goats
        • Pigs
        • Sheep
        • Turkeys
        • Other
          • Alligators
          • Alpacas
          • Bees
          • Buffalo
          • Calves
          • Camels
          • Cats
          • Chinchillas
          • Crocodiles
          • Deer
          • Dingoes
          • Dogs
          • Donkeys
          • Emus
          • Fish/sealife
          • Foxes
          • Geese
          • Greyhounds
          • Horses
          • Kangaroos
          • Koalas
          • Lions
          • Llamas
          • Mice
          • Minks
          • Monkeys
          • Ostriches
          • Quail
          • Rabbits
          • Rats
    • Companies 1182
      • All companies
      • By category
        • Farm (meat)
        • Farm (dairy)
        • Farm (eggs)
        • Farm (wool)
        • Farm (skins/fur)
        • Hatchery
        • Saleyard
        • Slaughterhouse
        • Knackery
        • Other
          • Agricultural show
          • Circus
          • Dairy processing
          • Depot / holding yard
          • Experimentation
          • Farm (honey)
          • Meat processing (non-slaughter)
          • Other entertainment
          • Pet breeder
          • Race training/breeding
          • Racecourse
          • Rendering plant
          • Rodeo
          • Wildlife
          • Zoo
        • Unknown
      • By species
        • Chickens
        • Cows/cattle
        • Ducks
        • Goats
        • Pigs
        • Sheep
        • Turkeys
        • Other
          • Alligators
          • Alpacas
          • Bees
          • Buffalo
          • Calves
          • Camels
          • Cats
          • Chinchillas
          • Crocodiles
          • Deer
          • Dingoes
          • Dogs
          • Donkeys
          • Emus
          • Fish/sealife
          • Foxes
          • Geese
          • Greyhounds
          • Horses
          • Kangaroos
          • Koalas
          • Lions
          • Llamas
          • Mice
          • Minks
          • Monkeys
          • Ostriches
          • Quail
          • Rabbits
          • Rats
  • Map
  • Virtual Tours
    • Gathercole's Wangaratta
    • EcoPiggery
    • Tasmanian Quality Meats
    • Scottsdale Pork
    • Gowanbrae Piggery
    • See all
  • Knowledgebase
    • Animals used for Food
      • Abattoirs / Slaughterhouses
        • Age of animals slaughtered
        • Halal and kosher slaughter
        • Stunning and Killing
        • Transport
        • What's wrong with slaughter?
        • Glossary
      • Broiler (Meat) Chickens
        • Breeding
        • Drug use
        • Health issues
        • Information from Animal Liberation's 2011 Investigation
        • On the farm
        • Rapid Growth
        • Same species feeding
        • Slaughter
        • The hatchery
      • Camels
        • Cattle (Beef)
          • Feedlots
          • Live Export
          • Painful procedures
          • Slaughter
        • Dairy
          • Camel dairy
          • Cow dairy
          • Goat dairy
        • Deer
          • Ducks
            • Bill mutilation
            • Breeding
            • Common health issues
            • Housing
            • Slaughter
            • The Poultry Code
            • Down
          • Eggs
            • Barn laid
            • Breeding
            • Caged Eggs
            • Free-Range
            • Hatchery
            • Health issues
            • Slaughter
          • Emus
            • Fish and marine life
              • By-catch
              • Do fish feel pain?
              • Farmed fish
              • Wild-caught fish
            • Goats
              • Kangaroos
                • Knackeries
                  • Live Export
                    • Pigs
                      • Breeding
                      • Farrowing Crates
                      • Free Range
                      • Slaughter
                      • Sow Stalls
                      • Standard practice (mutilation): piglets
                      • Gas chambers
                    • Rabbits
                      • Rendering
                        • Saleyards
                          • Sheep
                            • Sheep Feedlots
                          • Turkeys
                            • Breeding
                            • Hatchery
                            • Health issues
                            • Housing
                            • Slaughter
                        • Animals used for Pets
                          • Birds
                            • Cats
                              • Dogs
                                • Fish
                                  • Mice
                                    • Rabbits
                                      • Reptiles
                                      • Wildlife
                                        • Duck Shooting
                                          • Kangaroos
                                            • Koalas
                                              • Rabbits
                                                • Wild Deer
                                                  • Wild Pigs
                                                  • Animals used for Entertainment
                                                    • Circuses
                                                      • Greyhound Racing
                                                        • Behavioural welfare
                                                        • Doping and Aversive Therapies
                                                        • How can you help?
                                                        • International Export
                                                        • Is greyhound racing banned in Australia?
                                                        • Live baiting
                                                        • Medical neglect
                                                        • Track injuries and death
                                                        • Wastage
                                                      • Horse Racing
                                                        • Doping of Horses
                                                        • Health Complications
                                                        • Horse Breakers
                                                        • Human impacts of horse racing
                                                        • Painful Equipment
                                                        • Racing
                                                        • The Sales
                                                        • The Stud
                                                        • Training/Housing
                                                        • Wastage
                                                      • Rodeos
                                                        • Zoos
                                                        • Animals used for Clothing
                                                          • Crocodile & Alligator
                                                            • Fur
                                                              • Leather
                                                                • Wool
                                                                • Animals used for Science
                                                                  • Cosmetic Testing
                                                                    • Medical
                                                                    • Activism
                                                                      • Engaging with police at protests (Victoria)
                                                                        • Wearable TVs for protests and outreach
                                                                        • Environment
                                                                          • Climate Change
                                                                          • Glossary
                                                                          • Campaigns
                                                                            • Andgar Piggeries, South Australia
                                                                            • Eggs Exposed
                                                                            • Dairy Factory Farms
                                                                            • Shut down slaughterhouses
                                                                            • Victorian piggeries 2025
                                                                            • Cows killed in horrific Melbourne truck crash
                                                                            • End dairy slaughter
                                                                            • The Price of Pork
                                                                            • Ban gas chambers
                                                                            • Rabbit farming and slaughter
                                                                            • See all
                                                                          • Investigations
                                                                            • NSW Dairies 2025 - Summary
                                                                            • Maxine Fraser investigation summary
                                                                            • Andgar Piggeries SA, Aug 2025
                                                                            • Andgar Piggery, Dublin SA
                                                                            • Cowra Meat Processors, Cowra NSW
                                                                            • Dairy Factory Farms
                                                                            • DJ & CA Meek Slaughterhouse, Edenhope VIC
                                                                            • Tinder Creek duck slaughterhouse NSW
                                                                            • E.T Chicken Processors, Llandilo NSW
                                                                            • Seven QLD slaughterhouses investigated
                                                                            • See all
                                                                          • Take Action
                                                                            • Petitions & Pledges
                                                                              • Tell SA Authorities to Shut Down Dublin Piggery
                                                                              • Leave animal products off my plate
                                                                              • Help us shut down slaughterhouses
                                                                              • End dairy deception in schools
                                                                              • Open letter regarding inadequacy and corruption of abattoir regulator
                                                                              • See all
                                                                            • Upcoming Events (Facebook)
                                                                            • Take action for Palestine
                                                                          • News & Media
                                                                            • Media Releases
                                                                            • Editorials
                                                                            • Investigator Diaries
                                                                          • Projects
                                                                            • Farm Transparency Map
                                                                            • Dominion
                                                                            • Lucent
                                                                            • 1000 eyes
                                                                            • Melbourne Animal Rights Centre (MARC)
                                                                            • Stop the Cycle
                                                                          • Support Us
                                                                            • Donate
                                                                            • Dominion Movement Action Team
                                                                            • Fundraise
                                                                            • Volunteer
                                                                            • Shop
                                                                            • Goodwill Wine
                                                                          • About Us
                                                                            • The Team
                                                                            • Our History
                                                                            • Core Values
                                                                            • FAQ
                                                                            • Job Vacancies
                                                                            • Contact Us
                                                                          • About Us
                                                                          • Contact Us
                                                                          • Core Values
                                                                          • Job Vacancies
                                                                          • Donate
                                                                          • Shop
                                                                          • My account
                                                                            Forgot LoginCreate Account
                                                                          Search

                                                                          Farm Transparency Repository

                                                                          123 results
                                                                          Search terms
                                                                          Searches title, description, tags, location.
                                                                          Tags
                                                                          Advanced search
                                                                          Separate words/phrases to exclude with a comma.
                                                                          Sort by
                                                                          Asset type
                                                                          Clear
                                                                          Category
                                                                          Clear
                                                                          Most common
                                                                          Other
                                                                          Species
                                                                          Clear
                                                                          Most common
                                                                          Other
                                                                          Location
                                                                          Clear
                                                                          Credits
                                                                          Clear
                                                                          Publisher/creator
                                                                          Photographer
                                                                          Apply filters
                                                                          Kilto Station Yards Works Approval
                                                                          Kilto Station Yards Works Approval
                                                                          Kilto Station Yards Works Approval
                                                                          Other
                                                                          Created 2017
                                                                          Australia
                                                                          Kojonup Saleyards Licence
                                                                          Kojonup Saleyards Licence
                                                                          Kojonup Saleyards Licence
                                                                          Licence/certificate
                                                                          Created 2016
                                                                          Australia
                                                                          Roebuck Export Depot Licence
                                                                          Roebuck Export Depot Licence
                                                                          Roebuck Export Depot Licence
                                                                          Licence/certificate
                                                                          Created 2012
                                                                          Australia
                                                                          Broome Common Saleyard/Holding Pens Lincence
                                                                          Broome Common Saleyard/Holding Pens Lincence
                                                                          Broome Common Saleyard/Holding Pens Lincence
                                                                          Licence/certificate
                                                                          Created 2017
                                                                          Australia
                                                                          Kevin William Radford (Saleyard/Holding Pen) Licence
                                                                          Kevin William Radford (Saleyard/Holding Pen) Licence
                                                                          Kevin William Radford (Saleyard/Holding Pen) Licence
                                                                          Licence/certificate
                                                                          Created 2015
                                                                          Australia
                                                                          Port of Wyndham Holding Pens Licence
                                                                          Port of Wyndham Holding Pens Licence
                                                                          Port of Wyndham Holding Pens Licence
                                                                          Licence/certificate
                                                                          Created 2014
                                                                          Australia
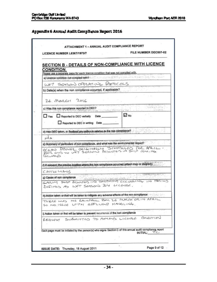
                                                                          Port of Wyndham Holding Pens Annual Audit Compliance Report
                                                                          Port of Wyndham Holding Pens Annual Audit Compliance Report
                                                                          Port of Wyndham Holding Pens Annual Audit Compliance Report
                                                                          Report / Plan
                                                                          Created 2017
                                                                          Australia
                                                                          Colourstone Abattoir Licence
                                                                          Colourstone Abattoir Licence
                                                                          Colourstone Abattoir Licence
                                                                          Licence/certificate
                                                                          Created 2016
                                                                          Australia
                                                                          Hillside Meat Processors Abattoir
                                                                          Hillside Meat Processors Abattoir
                                                                          Hillside Meat Processors Abattoir
                                                                          Licence/certificate
                                                                          Created 2013
                                                                          Australia
                                                                          Esperance Meat Exports/Shark Lake Abattoir Licence
                                                                          Esperance Meat Exports/Shark Lake Abattoir Licence
                                                                          Esperance Meat Exports/Shark Lake Abattoir Licence
                                                                          Licence/certificate
                                                                          Created 2017
                                                                          Australia
                                                                          Gingin Meatworks Abattoir Licence
                                                                          Gingin Meatworks Abattoir Licence
                                                                          Gingin Meatworks Abattoir Licence
                                                                          Licence/certificate
                                                                          Created 2015
                                                                          Australia
                                                                          Avon Valley Abattoir Licence
                                                                          Avon Valley Abattoir Licence
                                                                          Avon Valley Abattoir Licence
                                                                          Licence/certificate
                                                                          Created 2016
                                                                          Australia
                                                                          V & V Walsh Abattoir Licence
                                                                          V & V Walsh Abattoir Licence
                                                                          V & V Walsh Abattoir Licence
                                                                          Licence/certificate
                                                                          Created 2015
                                                                          Australia
                                                                          Development and Extension of Industry Best Practice for On Farm Euthanasia of Spent Layer Hens
                                                                          Development and Extension of Industry Best Practice for On Farm Euthanasia of Spent Layer Hens
                                                                          Development and Extension of Industry Best Practice for On Farm Euthanasia of Spent Layer Hens
                                                                          Report / Plan
                                                                          Created 2015
                                                                          Australia
                                                                          Review of the Poultry Meat Industry Act 1986
                                                                          Review of the Poultry Meat Industry Act 1986
                                                                          Review of the Poultry Meat Industry Act 1986
                                                                          Report / Plan
                                                                          Created 2013
                                                                          Australia
                                                                          Cheviot Hills Feedlot Works Approval
                                                                          Cheviot Hills Feedlot Works Approval
                                                                          Cheviot Hills Feedlot Works Approval
                                                                          Other
                                                                          Created 2016
                                                                          Australia
                                                                          Kerrigan Feedlot Works Approval
                                                                          Kerrigan Feedlot Works Approval
                                                                          Kerrigan Feedlot Works Approval
                                                                          Other
                                                                          Created 2016
                                                                          Australia
                                                                          Boyanup Saleyard Licence Amendment 1
                                                                          Boyanup Saleyard Licence Amendment 1
                                                                          Boyanup Saleyard Licence Amendment 1
                                                                          Licence/certificate
                                                                          Created 2017
                                                                          Australia
                                                                          Peel Feedlot Licence
                                                                          Peel Feedlot Licence
                                                                          Peel Feedlot Licence
                                                                          Licence/certificate
                                                                          Created 2015
                                                                          Australia
                                                                          Westpork Serpentine (Tralka) Works Approval
                                                                          Westpork Serpentine (Tralka) Works Approval
                                                                          Westpork Serpentine (Tralka) Works Approval
                                                                          Other
                                                                          Created 2015
                                                                          Australia
                                                                          Westpork Serpentine (Tralka) Works Approval
                                                                          Westpork Serpentine (Tralka) Works Approval
                                                                          Westpork Serpentine (Tralka) Works Approval
                                                                          Other
                                                                          Created 2015
                                                                          Australia
                                                                          GD Pork Piggery Works Approval
                                                                          GD Pork Piggery Works Approval
                                                                          GD Pork Piggery Works Approval
                                                                          Other
                                                                          Created 2015
                                                                          Australia
                                                                          Hillcroft Farms Piggery Licence
                                                                          Hillcroft Farms Piggery Licence
                                                                          Hillcroft Farms Piggery Licence
                                                                          Licence/certificate
                                                                          Created 2014
                                                                          Australia
                                                                          C M Farms - Mogumber Piggery Licence
                                                                          C M Farms - Mogumber Piggery Licence
                                                                          C M Farms - Mogumber Piggery Licence
                                                                          Licence/certificate
                                                                          Created 2016
                                                                          Australia
                                                                          Australind Piggery Licence
                                                                          Australind Piggery Licence
                                                                          Australind Piggery Licence
                                                                          Licence/certificate
                                                                          Created 2016
                                                                          Australia
                                                                          Paradise Beef Cattle Feedlot Licence Amendment
                                                                          Paradise Beef Cattle Feedlot Licence Amendment
                                                                          Paradise Beef Cattle Feedlot Licence Amendment
                                                                          Licence/certificate
                                                                          Created 2017
                                                                          Australia
                                                                          Narrogin Feedlot Licence
                                                                          Narrogin Feedlot Licence
                                                                          Narrogin Feedlot Licence
                                                                          Licence/certificate
                                                                          Created 2015
                                                                          Australia
                                                                          Rules of the Royal Zoological Society of South Australia
                                                                          Rules of the Royal Zoological Society of South Australia
                                                                          Rules of the Royal Zoological Society of South Australia
                                                                          Created 2015
                                                                          Australia
                                                                          Animal Welfare Guidelines - Calves (Tasmania)
                                                                          Animal Welfare Guidelines - Calves (Tasmania)
                                                                          Animal Welfare Guidelines - Calves (Tasmania)
                                                                          Other
                                                                          Created 2008
                                                                          Australia
                                                                          Australian Animal Welfare Standards and Guidelines for Cattle
                                                                          Australian Animal Welfare Standards and Guidelines for Cattle
                                                                          Australian Animal Welfare Standards and Guidelines for Cattle
                                                                          Report / Plan
                                                                          Created 2016
                                                                          Australia
                                                                          NT Barramundi Farming Handbook Online
                                                                          NT Barramundi Farming Handbook Online
                                                                          NT Barramundi Farming Handbook Online
                                                                          Created 2007
                                                                          Australia
                                                                          Australian prawn farming manual
                                                                          Australian prawn farming manual
                                                                          Australian prawn farming manual
                                                                          Created 2006
                                                                          Australia
                                                                          Angora Rabbit Fibre. Husbandry, production and future potential in Australia
                                                                          Angora Rabbit Fibre. Husbandry, production and future potential in Australia
                                                                          Angora Rabbit Fibre. Husbandry, production and future potential in Australia
                                                                          Report / Plan
                                                                          Australia
                                                                          Fisheries Management Act 1994 No 38 NSW
                                                                          Fisheries Management Act 1994 No 38 NSW
                                                                          Fisheries Management Act 1994 No 38 NSW
                                                                          Created 2013
                                                                          Australia
                                                                          Fish Resources Management Act 1994 WA
                                                                          Fish Resources Management Act 1994 WA
                                                                          Fish Resources Management Act 1994 WA
                                                                          Created 2011
                                                                          Australia
                                                                          Guidelines of Aquatic Animal Welfare for the Aquaculture Industry in WA
                                                                          Guidelines of Aquatic Animal Welfare for the Aquaculture Industry in WA
                                                                          Guidelines of Aquatic Animal Welfare for the Aquaculture Industry in WA
                                                                          Australia
                                                                          Aquatic Animal Welfare Guidelines Australia
                                                                          Aquatic Animal Welfare Guidelines Australia
                                                                          Aquatic Animal Welfare Guidelines Australia
                                                                          Australia
                                                                          NSW Commerical Fisheries Administration Guide- NSW Commercial Wild Harvest Fishing Industry
                                                                          NSW Commerical Fisheries Administration Guide- NSW Commercial Wild Harvest Fishing Industry
                                                                          NSW Commerical Fisheries Administration Guide- NSW Commercial Wild Harvest Fishing Industry
                                                                          Created 2016
                                                                          Australia
                                                                          South Australia Fisheries Management Act 2007
                                                                          South Australia Fisheries Management Act 2007
                                                                          South Australia Fisheries Management Act 2007
                                                                          Created 2017
                                                                          Australia
                                                                          Approved Arrangement for 7.11 - Commercial rabbits Requirements
                                                                          Approved Arrangement for 7.11 - Commercial rabbits Requirements
                                                                          Approved Arrangement for 7.11 - Commercial rabbits Requirements
                                                                          Report / Plan
                                                                          Created 2017
                                                                          Australia
                                                                          Poultry Meat Industry Act 1986, review 1999
                                                                          Poultry Meat Industry Act 1986, review 1999
                                                                          Poultry Meat Industry Act 1986, review 1999
                                                                          Report / Plan
                                                                          Created 1999
                                                                          Australia
                                                                          7/3/18 Notice of Suspension
                                                                          7/3/18 Notice of Suspension
                                                                          7/3/18 Notice of Suspension
                                                                          Report / Plan
                                                                          Created 2018
                                                                          United States
                                                                          Illegally Buried Chicken Waste
                                                                          Illegally Buried Chicken Waste
                                                                          Illegally Buried Chicken Waste
                                                                          Report / Plan
                                                                          Created 2018
                                                                          Australia
                                                                          ASIC Company Extract - MHNJC Pty Ltd
                                                                          ASIC Company Extract - MHNJC Pty Ltd
                                                                          ASIC Company Extract - MHNJC Pty Ltd
                                                                          Australia
                                                                          Raising Japanese quail
                                                                          Raising Japanese quail
                                                                          Raising Japanese quail
                                                                          Other
                                                                          Created 2008
                                                                          Australia
                                                                          Hygienic Behaviour in the Australian Queen Bee Breeding Program June 2015 Update
                                                                          Hygienic Behaviour in the Australian Queen Bee Breeding Program June 2015 Update
                                                                          Hygienic Behaviour in the Australian Queen Bee Breeding Program June 2015 Update
                                                                          Other
                                                                          Created 2015
                                                                          Australia
                                                                          Australian Honey Bee Industry Council Inc. Monthly Newletter - April 2018
                                                                          Australian Honey Bee Industry Council Inc. Monthly Newletter - April 2018
                                                                          Australian Honey Bee Industry Council Inc. Monthly Newletter - April 2018
                                                                          Meeting agenda/minutes/notes
                                                                          Created 2018
                                                                          Australia
                                                                          Australian Honey Bee Industry Council Inc. Monthly Newletter - February 2018
                                                                          Australian Honey Bee Industry Council Inc. Monthly Newletter - February 2018
                                                                          Australian Honey Bee Industry Council Inc. Monthly Newletter - February 2018
                                                                          Meeting agenda/minutes/notes
                                                                          Created 2018
                                                                          Australia
                                                                          Australian Honey Bee Industry Council Inc. Monthly Newletter - January 2018
                                                                          Australian Honey Bee Industry Council Inc. Monthly Newletter - January 2018
                                                                          Australian Honey Bee Industry Council Inc. Monthly Newletter - January 2018
                                                                          Meeting agenda/minutes/notes
                                                                          Created 2018
                                                                          Australia
                                                                          Australian Honey Bee Industry Biosecurity Code of Practice
                                                                          Australian Honey Bee Industry Biosecurity Code of Practice
                                                                          Australian Honey Bee Industry Biosecurity Code of Practice
                                                                          Other
                                                                          Created 2016
                                                                          Australia
                                                                          Changes to Australian Honey Bee Industry Biosecurity Code of Practice
                                                                          Changes to Australian Honey Bee Industry Biosecurity Code of Practice
                                                                          Changes to Australian Honey Bee Industry Biosecurity Code of Practice
                                                                          Other
                                                                          Created 2015
                                                                          Australia
                                                                          Honey bee biosecurity arrangements
                                                                          Honey bee biosecurity arrangements
                                                                          Honey bee biosecurity arrangements
                                                                          Other
                                                                          Created 2015
                                                                          Australia
                                                                          Near Infrared Reflectance Spectroscopy: Applications in Deer Nutrition
                                                                          Near Infrared Reflectance Spectroscopy: Applications in Deer Nutrition
                                                                          Near Infrared Reflectance Spectroscopy: Applications in Deer Nutrition
                                                                          Report / Plan
                                                                          Created 2003
                                                                          Australia
                                                                          Salmon Farming Proposals in Storm Bay
                                                                          Salmon Farming Proposals in Storm Bay
                                                                          Salmon Farming Proposals in Storm Bay
                                                                          Other
                                                                          Created 2016
                                                                          Australia
                                                                          Deer Farming Handbook - Handling & Yards
                                                                          Deer Farming Handbook - Handling & Yards
                                                                          Deer Farming Handbook - Handling & Yards
                                                                          Other
                                                                          Created 2003
                                                                          Australia
                                                                          Prevention of Cruelty to Animals Act 1979 No 200
                                                                          Prevention of Cruelty to Animals Act 1979 No 200
                                                                          Prevention of Cruelty to Animals Act 1979 No 200
                                                                          Other
                                                                          Created 2017
                                                                          Australia
                                                                          Deep Litter Housing for Pigs
                                                                          Deep Litter Housing for Pigs
                                                                          Deep Litter Housing for Pigs
                                                                          Report / Plan
                                                                          Created 2006
                                                                          Australia
                                                                          Meat & Livestock Aust MSA Licenced Plants
                                                                          Meat & Livestock Aust MSA Licenced Plants
                                                                          Meat & Livestock Aust MSA Licenced Plants
                                                                          List or spreadsheet
                                                                          Created 2015
                                                                          Australia
                                                                          Rosguy Holding Yard Licence
                                                                          Rosguy Holding Yard Licence
                                                                          Rosguy Holding Yard Licence
                                                                          Licence/certificate
                                                                          Created 2012
                                                                          Australia
                                                                          Roebuck Export Depot Licence Amendment
                                                                          Roebuck Export Depot Licence Amendment
                                                                          Roebuck Export Depot Licence Amendment
                                                                          Licence/certificate
                                                                          Created 2017
                                                                          Australia
                                                                          La Bergerie Holding Facility Licence
                                                                          La Bergerie Holding Facility Licence
                                                                          La Bergerie Holding Facility Licence
                                                                          Licence/certificate
                                                                          Created 2014
                                                                          Australia
                                                                          Boyanup Saleyard Licence Amendment 2
                                                                          Boyanup Saleyard Licence Amendment 2
                                                                          Boyanup Saleyard Licence Amendment 2
                                                                          Licence/certificate
                                                                          Created 2017
                                                                          Australia
                                                                          Peel Feedlot Licence Amendment
                                                                          Peel Feedlot Licence Amendment
                                                                          Peel Feedlot Licence Amendment
                                                                          Licence/certificate
                                                                          Created 2016
                                                                          Australia
                                                                          Amberley Livestock Holding Facility Licence
                                                                          Amberley Livestock Holding Facility Licence
                                                                          Amberley Livestock Holding Facility Licence
                                                                          Licence/certificate
                                                                          Created 2017
                                                                          Australia
                                                                          Amberley Livestock Holding Facility Annual Audit Compliance Report
                                                                          Amberley Livestock Holding Facility Annual Audit Compliance Report
                                                                          Amberley Livestock Holding Facility Annual Audit Compliance Report
                                                                          Report / Plan
                                                                          Created 2017
                                                                          Australia
                                                                          Mundella Food Dairy & Milk Processing Licence
                                                                          Mundella Food Dairy & Milk Processing Licence
                                                                          Mundella Food Dairy & Milk Processing Licence
                                                                          Licence/certificate
                                                                          Created 2015
                                                                          Australia
                                                                          Karnet Prison Farm Abattoir Licence
                                                                          Karnet Prison Farm Abattoir Licence
                                                                          Karnet Prison Farm Abattoir Licence
                                                                          Licence/certificate
                                                                          Created 2011
                                                                          Australia
                                                                          Cowaramup Abattoir Licence Annual Audit Compliance Report
                                                                          Cowaramup Abattoir Licence Annual Audit Compliance Report
                                                                          Cowaramup Abattoir Licence Annual Audit Compliance Report
                                                                          Report / Plan
                                                                          Created 2017
                                                                          Australia
                                                                          Inghams Abattoir Licence
                                                                          Inghams Abattoir Licence
                                                                          Inghams Abattoir Licence
                                                                          Licence/certificate
                                                                          Created 2016
                                                                          Australia
                                                                          Esperance Meat Exports/Shark Lake Abattoir Licence Amendment Notice
                                                                          Esperance Meat Exports/Shark Lake Abattoir Licence Amendment Notice
                                                                          Esperance Meat Exports/Shark Lake Abattoir Licence Amendment Notice
                                                                          Licence/certificate
                                                                          Created 2017
                                                                          Australia
                                                                          Harvey Beef Abattoir Licence
                                                                          Harvey Beef Abattoir Licence
                                                                          Harvey Beef Abattoir Licence
                                                                          Licence/certificate
                                                                          Created 2015
                                                                          Australia
                                                                          Harvey Beef Abattoir Licence Amendment Notice
                                                                          Harvey Beef Abattoir Licence Amendment Notice
                                                                          Harvey Beef Abattoir Licence Amendment Notice
                                                                          Licence/certificate
                                                                          Created 2016
                                                                          Australia
                                                                          Harvey Beef Abattoir Annual Audit Compliance Report
                                                                          Harvey Beef Abattoir Annual Audit Compliance Report
                                                                          Harvey Beef Abattoir Annual Audit Compliance Report
                                                                          Report / Plan
                                                                          Created 2017
                                                                          Australia
                                                                          V & V Walsh Abattoir Annual Audit Compliance Report
                                                                          V & V Walsh Abattoir Annual Audit Compliance Report
                                                                          V & V Walsh Abattoir Annual Audit Compliance Report
                                                                          Report / Plan
                                                                          Created 2017
                                                                          Australia
                                                                          Goodchild Abattoir Licence
                                                                          Goodchild Abattoir Licence
                                                                          Goodchild Abattoir Licence
                                                                          Licence/certificate
                                                                          Created 2015
                                                                          Australia
                                                                          Dardanup Butchering Company Licence
                                                                          Dardanup Butchering Company Licence
                                                                          Dardanup Butchering Company Licence
                                                                          Licence/certificate
                                                                          Created 2015
                                                                          Australia
                                                                          Dardanup Butchering Company Licence Amendment Notice
                                                                          Dardanup Butchering Company Licence Amendment Notice
                                                                          Dardanup Butchering Company Licence Amendment Notice
                                                                          Licence/certificate
                                                                          Created 2016
                                                                          Australia
                                                                          Westpork Gingin Breeder Farm Works Approval
                                                                          Westpork Gingin Breeder Farm Works Approval
                                                                          Westpork Gingin Breeder Farm Works Approval
                                                                          Other
                                                                          Created 2015
                                                                          Australia
                                                                          GD Pork Piggery Works Approval Amendment Notice
                                                                          GD Pork Piggery Works Approval Amendment Notice
                                                                          GD Pork Piggery Works Approval Amendment Notice
                                                                          Other
                                                                          Created 2016
                                                                          Australia
                                                                          Sharklake Piggery Licence
                                                                          Sharklake Piggery Licence
                                                                          Sharklake Piggery Licence
                                                                          Licence/certificate
                                                                          Created 2011
                                                                          Australia
                                                                          GD Pork Piggery Licence
                                                                          GD Pork Piggery Licence
                                                                          GD Pork Piggery Licence
                                                                          Licence/certificate
                                                                          Created 2016
                                                                          Australia
                                                                          Nambeelup Piggery Licence
                                                                          Nambeelup Piggery Licence
                                                                          Nambeelup Piggery Licence
                                                                          Licence/certificate
                                                                          Created 2010
                                                                          Australia
                                                                          Westpork Piggery Licence
                                                                          Westpork Piggery Licence
                                                                          Westpork Piggery Licence
                                                                          Licence/certificate
                                                                          Created 2015
                                                                          Australia
                                                                          Paradise Beef Cattle Feedlot Licence
                                                                          Paradise Beef Cattle Feedlot Licence
                                                                          Paradise Beef Cattle Feedlot Licence
                                                                          Licence/certificate
                                                                          Created 2015
                                                                          Australia
                                                                          Semini Feedlot Licence
                                                                          Semini Feedlot Licence
                                                                          Semini Feedlot Licence
                                                                          Licence/certificate
                                                                          Created 2016
                                                                          Australia
                                                                          Semini Feedlot Licence Amendment Notice
                                                                          Semini Feedlot Licence Amendment Notice
                                                                          Semini Feedlot Licence Amendment Notice
                                                                          Licence/certificate
                                                                          Created 2017
                                                                          Australia
                                                                          Serpentine-Jarrahdale Holding Yards Annual Audit Compliance Report Form
                                                                          Serpentine-Jarrahdale Holding Yards Annual Audit Compliance Report Form
                                                                          Serpentine-Jarrahdale Holding Yards Annual Audit Compliance Report Form
                                                                          Report / Plan
                                                                          Created 2016
                                                                          Australia
                                                                          Serpentine- Jarrahdale Holding Yards Licence
                                                                          Serpentine- Jarrahdale Holding Yards Licence
                                                                          Serpentine- Jarrahdale Holding Yards Licence
                                                                          Licence/certificate
                                                                          Created 2013
                                                                          Australia
                                                                          Charla Downs Feedlot Licence
                                                                          Charla Downs Feedlot Licence
                                                                          Charla Downs Feedlot Licence
                                                                          Licence/certificate
                                                                          Created 2016
                                                                          Australia
                                                                          Feral Pigs in Queensland
                                                                          Feral Pigs in Queensland
                                                                          Feral Pigs in Queensland
                                                                          Report / Plan
                                                                          Created 1998
                                                                          Australia
                                                                          JBS Australia -  Terms of Trading (Sale of Goods and/or Services)
                                                                          JBS Australia - Terms of Trading (Sale of Goods and/or Services)
                                                                          JBS Australia - Terms of Trading (Sale of Goods and/or Services)
                                                                          Other
                                                                          Created 2012
                                                                          Australia
                                                                          Handbook for Kangaroo Harvesters
                                                                          Handbook for Kangaroo Harvesters
                                                                          Handbook for Kangaroo Harvesters
                                                                          Other
                                                                          Created 2015
                                                                          Australia
                                                                          The Welfare of Dolphins in Captivity
                                                                          The Welfare of Dolphins in Captivity
                                                                          The Welfare of Dolphins in Captivity
                                                                          Created 2017
                                                                          Australia
                                                                          Zoos SA Position Statement on Palm Oil
                                                                          Zoos SA Position Statement on Palm Oil
                                                                          Zoos SA Position Statement on Palm Oil
                                                                          Created 2011
                                                                          Australia
                                                                          Deer in Queensland
                                                                          Deer in Queensland
                                                                          Deer in Queensland
                                                                          Created 2005
                                                                          Australia
                                                                          A Manual for Farmers & Veterinarians on the Velveting of Deer in Australia
                                                                          A Manual for Farmers & Veterinarians on the Velveting of Deer in Australia
                                                                          A Manual for Farmers & Veterinarians on the Velveting of Deer in Australia
                                                                          Created 2002
                                                                          Australia
                                                                          Australian Animal Welfare Standards and Guidelines for Sheep
                                                                          Australian Animal Welfare Standards and Guidelines for Sheep
                                                                          Australian Animal Welfare Standards and Guidelines for Sheep
                                                                          Other
                                                                          Created 2016
                                                                          Australia
                                                                          Is the Use of Fishmeal and Fishoil in Aquaculture Diets Sustainable - Technote
                                                                          Is the Use of Fishmeal and Fishoil in Aquaculture Diets Sustainable - Technote
                                                                          Is the Use of Fishmeal and Fishoil in Aquaculture Diets Sustainable - Technote
                                                                          Created 2008
                                                                          Australia
                                                                          Guidelines for the Housing of Rabbits in Scientific Institutions
                                                                          Guidelines for the Housing of Rabbits in Scientific Institutions
                                                                          Guidelines for the Housing of Rabbits in Scientific Institutions
                                                                          Report / Plan
                                                                          Created 2003
                                                                          Australia
                                                                          Huon Aquaculture: Future of Fish Farming
                                                                          Huon Aquaculture: Future of Fish Farming
                                                                          Huon Aquaculture: Future of Fish Farming
                                                                          Created 2017
                                                                          Australia

                                                                          Farm Transparency Project

                                                                          Upload Map About Donate
                                                                          Farm Transparency Project (FTP) logo

                                                                          This website serves as a free public repository, information centre and toolkit for consumers and animal advocates in Australia, intended to force transparency on animal-exploitative industries.

                                                                          Farm Transparency Project (FTP) does not condone or encourage the use of this resource for illegal purposes including trespass, or for any use contrary to our core values.

                                                                          View our latest campaigns and investigations, and take action.

                                                                          Privacy Policy Terms of Use

                                                                          Take action for Palestine

                                                                          About

                                                                          Farm Transparency Project (FTP) is an animal protection charity, dedicated to ending the abuse and exploitation of animals in farms, slaughterhouses and other commercial settings.

                                                                          About us The team Our history Core values Frequently Asked Questions (FAQ) Job vacancies Contact us

                                                                          Based in Melbourne/Naarm, Australia.
                                                                          PO Box 9, South Melbourne VIC 3205 Australia

                                                                          Farm Transparency International Ltd
                                                                          ABN 46 641 242 579

                                                                          Farm Transparency Project (FTP) operates on the country of the Kulin Nation, the longstanding sovereigns of this land. Always was, always will be Aboriginal land.

                                                                          Support

                                                                          Donate Volunteer Shop

                                                                          Projects

                                                                          Dominion (documentary) Repository (gallery) Farm & slaughterhouse map Virtual tours

                                                                          Site tools

                                                                          Upload Login Create account Quick links

                                                                          Connect

                                                                          Get email updates

                                                                          Sign up to campaign updates

                                                                          Media

                                                                          Latest media releases & statements Sign up to media releases

                                                                          Live Vegan

                                                                          Pledge Free Veg Starter Kit VeganEasy

                                                                          Your session has expired!

                                                                          Your session will expire in seconds! Click 'Continue' to stay logged in.